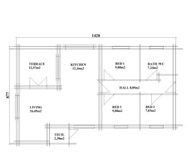
Luise 114


Luise 114 -doppelte Aussenwand für verschiedene Wärmedämmsysteme geeignet -2 oder 3-fach Verglasung

...

KI unterstützt