elumaja Margus


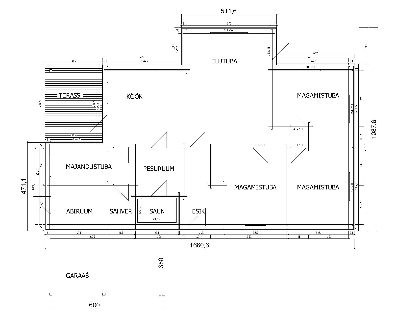
Nägus, energiasäästlik 180 m2 ühepere elamu Aili. Selle elumaja projekteerisime lähtuvalt kliendi soovidest, vajadustest ja võimalustest. Sooviks oli 3 magamistuba, avatud köök-elutuba ja teised abiruumid. Maja arhitektuurses osas arvestasime krundi asukohta ja sobivust asula miljöösse. Välisilmes on suured räästad kaitsmaks välisseina vihma ja päikese eest, lisaks veel katusealune autole ning terrassil istumiseks. Tubade paigutamisel olid olulisteks teguriteks praktiline ja mugav igapäevane kasutus, mis tagaks kõigi pereliikmete rahulolu. Palkmaja soojapidavuse tagab hübriidsein, mis koosneb seest - 70mm freesprussist, tagades hea sisekliima, väljast - soojustus, mida katab horisontaalne voodrilaud. Akende ja uste valikul on arvestatud seinte soojapidavuse näitajaid, vältimaks energia kadusid. Hoonet kütab maasoojuspump ja õhuvahetust reguleerib automaatne soojustagastusega õhuvaheti.

AI supported